上馬場 新築戸建
女性1級デザイナーが手掛ける新築住宅完成☆生活動線にこだわった間取りです♪
- 価格
- 3,980万円
- ローンの目安
- 10.4万円/月
- 所在地/交通
-
埼玉県八潮市大字上馬場
東武伊勢崎線「草加」駅 徒歩33分
- 間取り/建物面積
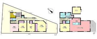
- 3LDK
104.34㎡
-

- 八潮市立八幡小学校
約328m/4分

- 八潮市立八幡中学校
約573m/7分

- (株)いなげや 八潮中馬場店
約1140m/14分

- CoCo壱番屋 八潮上馬場店
約90m/1分

- 安楽亭 八潮店
約154m/2分

- セブンイレブン八潮中央店
約300m/3分

- 八潮幼稚園
約420m/5分
近くの物件を探す
※クリックで別の物件を地図から検索できます。
ローンシミュレーションこの物件を購入した場合の、月々の支払い価格の一例です。
- 返済期間
-
- 金利
-
- ボーナス時の増額(1回分)
-
- 借入金額:
-
- 頭金:
-

- 毎月の返済額:
(※元利均等方式 金利5.00%まで ※返済年数5~35年まで入力できます)
(※ボーナスは年2回で計算しています。1000万円まで入力できます)
情報の見方担当者のコメント 小滝雅久

- ▼『エンクル株式会社』は2020年7月1日より、『株式会社新日本エステート』から社名変更致しました。
▼1988年(昭和63年)10月に創業し、『八潮市・三郷市』にて36年目となります。地元の不動産屋さんをお探しの方は、『エンクル株式会社』へご相談ください。
▼不動産は地域性の特徴がございます。地域密着により培った経験やノウハウを生かし、お住まい探しの「不安」を解消致します。
▼他社様が取り扱う物件もまとめてご案内可能です。来店以外に、最寄り駅やご自宅への送迎も可能ですので、お気軽にお問い合わせください。
▼住宅ローン事前審査の無料代行も可能です。弊社提携、金融機関のご紹介も致します。
ポイント・特徴
物件概要 【新築一戸建】 物件番号:101180698 情報更新日:2026年03月05日 次回更新予定日:2026年03月12日
物件名 上馬場 新築戸建 所在地 埼玉県八潮市大字上馬場 交通 - 東武伊勢崎線「草加」駅 徒歩33分
- 東武伊勢崎線「谷塚」駅 バス12分 花畑桑袋団地 停歩16分
- 東武伊勢崎線「谷塚」駅 バス12分 花畑桑袋団地 停歩16分
間取り/詳細 3LDK/
LDK 17.0畳
洋室 7.1畳
洋室 5.2畳 2室
洋室 5.0畳接道状況 一方(北西 9.0m 公道) 価格 3,980万円 主要採光面 南西 建物面積/坪数 104.34㎡/ 31.56坪 土地面積/坪数 122.74㎡/ 37.12坪 種別/構造 新築一戸建/木造 築年月(築年数) 2026年 2月(建築中) 階建 2階建 地目 宅地 駐車場/料金 有/- 地勢 平坦 私道面積 - セットバック - 都市計画 市街化区域 用途地域 準工業 建ぺい率/容積率 60%/200% 土地権利 所有権 総区画数/販売区画数 -/- 借地料/借地期間 -/- 現況 未完成 その他の法令上の制限 - 取引態様/引渡時期 仲介/相談 土地の敷金/保証金 0万円/- 物件番号 101180698 建築確認番号 第25UDI1S建00388号号 設備条件 - 日当たり良好
- 女性向け
- ファミリー向け
- 室内洗濯機置場
- フローリング
- プロパンガス
- 公営水道
- 浄化槽排水
- 電気有
- システムキッチン
- 対面式キッチン
- バス・トイレ別
- 浴室1坪以上
物件お問い合わせ
価格と住所の近い物件
- 八潮市垳 中古戸建
- 3,999万円 4LDK/81.14㎡
- 埼玉県八潮市大字垳
- つくばエクスプレス「八潮」駅 徒歩12分
- 八潮4期1号棟
- 3,899万円 4LDK/101.52㎡
- 埼玉県八潮市八潮7丁目
- つくばエクスプレス「八潮」駅 徒歩23分
- 伊勢野 中古戸建て
- 4,180万円 4LDK/108.89㎡
- 埼玉県八潮市大字伊勢野
- つくばエクスプレス「八潮」駅 徒歩17分
- 八潮市伊草第2
- 4,280万円 4LDK/104.12㎡
- 埼玉県八潮市伊草1丁目
- 東武伊勢崎線「草加」駅
- 八潮市大字伊勢野の新築一戸建
- 4,290万円 4LDK/96.05㎡
- 埼玉県八潮市大字伊勢野
- つくばエクスプレス「八潮」駅 徒歩15分

- 〒340-0826
- 埼玉県八潮市茜町1丁目12-20
- 0120-09-6665
- TEL/048-997-6665
- FAX/048-994-2967
- 埼玉県知事 (9) 第13766号
建設業:埼玉県知事許可(般-3)第49174号
賃貸住宅管理業:国土交通大臣(2)第001857号
携帯電話画面
このQRコードを読み取ることで、ケータイでも物件情報を確認できます。



















